来源:售楼部卢经理 作者:jiefeng
2023-09-03 16:04:57
铂玥明珠(横沥地铁站旁500米)
金融岛中轴·后浪活力聚场
铂玥明珠ONE为什么这么便宜, 铂玥明珠ONE开发商,铂玥明珠ONE靠近地铁吗,
综合分析,铂玥明珠ONE为什么这么便宜,因为横沥岛上竞争楼盘太多了 开发商都是跟银行借钱建房子 每天都会产生利息 越早卖完对对开发商越有利 加上开发商拿地相当于横沥岛开发商要便宜 相对于地王拿地价2万一平方的建发明珠湾玺 价格便宜是正常的 预计2023年底就卖完 销售离场了 目前也是只有一些部分楼层
开发商,是四大品牌房企强强联合:美的置业;越秀地产;金地商置;旭辉集团 对于资金方面不会有太大压力所以 烂尾风险比较小的 加上国家打造南沙方案横沥岛是金融岛 不会允许有烂尾影响城市面貌的情况出现的 再差的恒大阳光半岛 政府也安排了央企中航接手 所以大家可以实地过来售楼部看房了解一下情况 价格方面现在最便单价2万5到2万7左右一平方就可以买到 横沥岛地铁口700米的房子 如果有了解南沙房价的话都知道 黄阁也是卖2万5到2万6一平方 用黄阁的价格买整个国家发展的《南沙方案》明珠湾金融岛 升值空间以及自住配套方面肯定是不可置疑的

(项目鸟瞰图)
【简介】
项目位于国际金融岛,属于明珠湾区板块,是南沙自贸区能级最高的总部经济板块——南沙CBD。项目位于横沥岛中心位置,临近横沥地铁站,享受三面江水环绕的瞰景视野。整个项目分为南北地块,是集合高尚住宅、体验式商业街区、酒店式公寓、创意办公多元业态于一体的TOD综合体。

(金融岛航拍图)
【开发商】美的置业&越秀地产&金地商置&旭辉集团
【项目规模】占地3.47万㎡ ,计容建面13.17万㎡
【容积率】3.8
【绿化率】30%
【产品类型】住宅,公寓,商铺
【物业管理】美的物业
2 项目核心卖点
【四大品牌房企强强联合】
美的置业 :智慧地产制造商,美的系成员企业,中国上市房企24强。六大经济区域布局350个项目,独创5M 智慧健康社区。
越秀地产:广州金牌房企,中国第一代商品房缔造者,中国地产50强,品牌价值30强,布局5大核心区域,进驻全国20多个城市。
金地商置:金地集团成员企业,香港上市公司,中国活力城市群35城 150个项目。
旭辉集团:中国房地产开发企业500强榜单TOP13,地产开发超过90座城市,累计开发项目超600个,服务逾50万业主,旗下旭辉永升服务荣列中国物业服务百强企业第12位。
【下一个前海|南沙红利“头等舱”】
横沥岛定位【中国首个国际金融岛】,总投资额超1000亿,截止到2020年12月份,横沥岛落户金融项目33个,投资总额达到970亿元。围绕中央部署的【IFF国际金融论坛永久会址】为核心,引入广州期货交易所、粤港澳湾区国际商业银行、港澳保险中心等重量级国际金融机构。

(金融岛产业分布图)
【全能配套加持 奢享岛尖豪配】
交通方面,全国最快地铁广州18号线2021年9月28日已开通,从横沥岛出发,快线2站即达珠江新城,25分钟可到达广州东站,途中将会经过番禺万博、琶洲、珠江新城等商务区。 未来或将串联珠海、中山、清远、澳门四城。

(18号线沿线房价示意图)
未来交通规划:南沙15号线,贯穿南北的31号线(原NS1线),以及联系东西片区的32号线(原NS2线);同时,岛内还将建设环岛的有轨电车F2,衔接15/31/32号线。更值得期待的是,粤港澳大湾区内第一条横跨广州、东莞、深圳的22号线将设站蕉门,横沥搭乘15号线3站便可实现换乘。

(交通规划示意图)
教育方面,横沥岛规划17所公立中小学,板块周边已建有广州外国语学校、广州市湾区实验学校、广大附中(南沙)实验学校,中国科学院大学广州学院(在建中)。未来还将建有1所一贯制9年制学校(规划), 6所一贯制中小学(规划)、7所幼儿园(规划),均为公办。至2025年,共新增3780个学位。

(横沥岛教育用地规划)
医疗方面,以中山大学附属第一医院南沙分院预计年内交付使用,中山大学附属口腔医院南沙分院在建中。

(中山大学附属第一医院效果图)
【金融岛中轴 | 后浪活力聚场】
综合多元 摩登玩聚场:集合高尚住宅、体验式商业街区、酒店式公寓、创意办公多元业态于一体。
场景社交 休闲水聚场:环水平台、3公园、4庭院、5广场,多功能场景,CBD菁英之选,公园式社交会客厅。
地铁加持 能量行聚场:横沥地铁站旁500米,5站琶洲、6站珠江新城,地铁18号线通勤全城,串联四大CBD,赋能高效生活。
迭代舒居 理想光聚场:金融岛中轴首作,滨水南向住宅,惬意私享沐阳,灵动可变,激活空间活力。
品质物业 智慧心聚场:美的物业,2021物业服务企业38强,智慧服务护家,服务业主超70万人次。

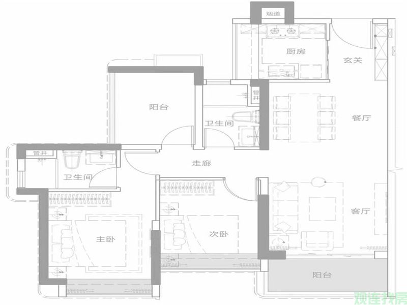
94平方三房两厅一卫

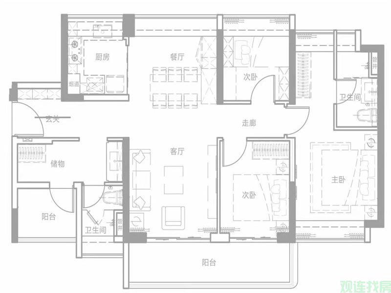
4房113平方户型

最新特价房单价2万5一平方起 买横沥地铁站楼盘
